Подробные чертежи и схемы изготовления твердотопливного котла своими руками

На странице представлены подробные чертежи и схемы изготовления твердотопливного котла, которые помогут вам сделать его своими руками. Приведенные материалы помогут вам создать эффективный и энергоэффективный твердотопливный котел для отопления вашего дома или дачи.


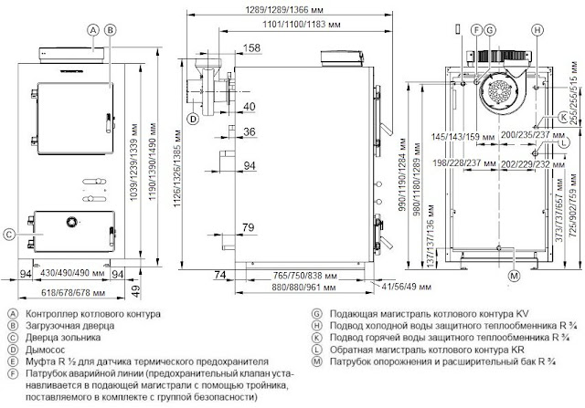
Перед началом работы, тщательно ознакомьтесь с чертежами и схемами изготовления.

b2eb39bf

Шахтный твердотопливный котел BRAGMAN своими руками

Обязательно используйте только качественные материалы и инструменты для изготовления котла.

Топить котлом? Это не покажут и не скажут в магазине! Смотреть всем!

Один из ключевых моментов - правильная установка дымохода и его соединение с котлом.

ЧЕРТЕЖ твердотопливного котла! Котел своими руками!

Не забудьте предусмотреть возможность регулировки тяги в котле для оптимальной работоспособности.

Твердотопливный котел 30кВт Своими руками! +Чертеж

Перед запуском котла, тщательно проверьте все соединения на герметичность, чтобы избежать утечек газа или дыма.

Котёл Холмова. Подробный обзор котла с доработкой.

Установите котел в верной позиции, чтобы обеспечить правильный расход топлива и оптимальную эффективность работы.

Твердотопливный котел длительного горения. Своими руками. ))

При сборке котла, учтите все требования безопасности, чтобы избежать возможных аварийных ситуаций.

Твердотопливный котел своими руками. ПОШАГОВО

Постоянно следите за состоянием и чистотой котла, чтобы он продолжал работать без сбоев и неполадок.

Не забудьте соблюдать все нормы и правила безопасности при эксплуатации твердотопливного котла.

Регулярно проводите техническое обслуживание котла для его долгой и бесперебойной работы.